














Overview
Colonial Heritage MHP is a quiet land lease community in the heart of Doylestown. Anyone looking for a new neighborhood in an excellent location will enjoy calling Colonial Heritage home. With a four star local school district and college campus just across the street, this community has something to offer you and your learning youngsters!
Downtown Doylestown is a short 10 minute walk – you will never run out of fun and interesting places to visit. Quaint restaurants and cozy little bed and breakfasts inhabit every corner of this Pennsylvania gem. Anyone looking to visit you in Colonial Heritage will be blown away by the community you live in and the neighborhood at your fingertips.
News & Promotion
ABC Home Sales was recently featured at The Philly Home + Garden Show;
We have many new homes coming in our communities for 2026 including the new Mini Models, exciting new multi sections homes featuring modern exterior roof lines and more.
Affordable, quality new construction homes are available to fit your lifestyle.
Place a deposit to reserve your lot, and we’ll help you build your new home with our manufacturing partners.
Map Of The Community
Lot: #197
Sale Price:$298,000
Status: Available Model Home
Recommended: Gable Entry
Amazing new home with a end entry garage facing the street. Full covered porch and a fireplace. Custom kitchen and more.
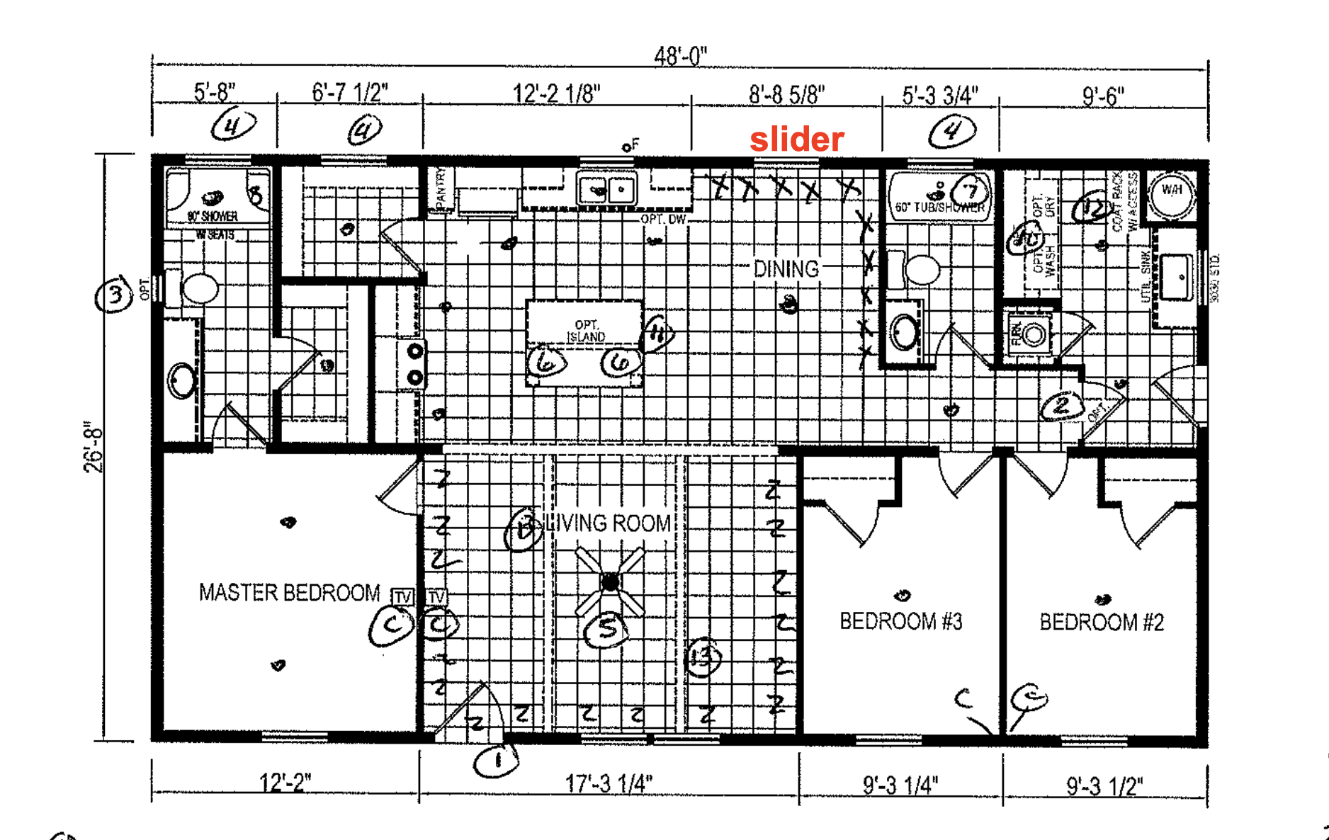
Floor Plan: View PDF
Max House SqFt: 1800
Looking to learn more about this lot or any of the other lots in this community?
78 Trainer
Lot: #78
Sale Price:$105,000
Status: Ordered Home
Recommended: Gable Entry
Wonderfull 1 bedroom 1 bath new home. Open concept with a full eight foot covered porch...
Max House SqFt: 800
Looking to learn more about this lot or any of the other lots in this community?
187 Conestoga
Lot: #187
Sale Price:$205,000
Status: Available Model Home
Recommended: Ranch Entry
New ranch home delivered to the community. Will be ready late March 2026. Three bedroom two bath amazing home.
Floor Plan: View PDF
Max House SqFt: 1500
Looking to learn more about this lot or any of the other lots in this community?
Amenities
- Community Space
- Wooded Lands
- Wooded Streets
- Paved Parking Spots
- Snow Removal
- Nature Trails
- Easy commute to NJ
- Trash service
- Common area maintenance
- Close to shopping
Application Process
After exploring everything Colonial Heritage has to offer, we look forward to hearing from you while you consider this lovely community. When you are ready to apply, download the application.
After making an appointment with an agent, having this application complete as possible will help speed along the approval process for your new home.
Please contact us with any questions. The online link is also a great way to start your journey. You will start online and finish with the community manager. Cheers.
Our Clients Say It Best...
The experience with Art and everyone at ABC Homes has been a flawless process. He has kept us informed every step of the way from start to finish he has been helpful. He is not a pushy salesman trying to make a sale. Art listened to our wants and ...Read More



















































