

70 Dawn Road, Halifax, PA 17032
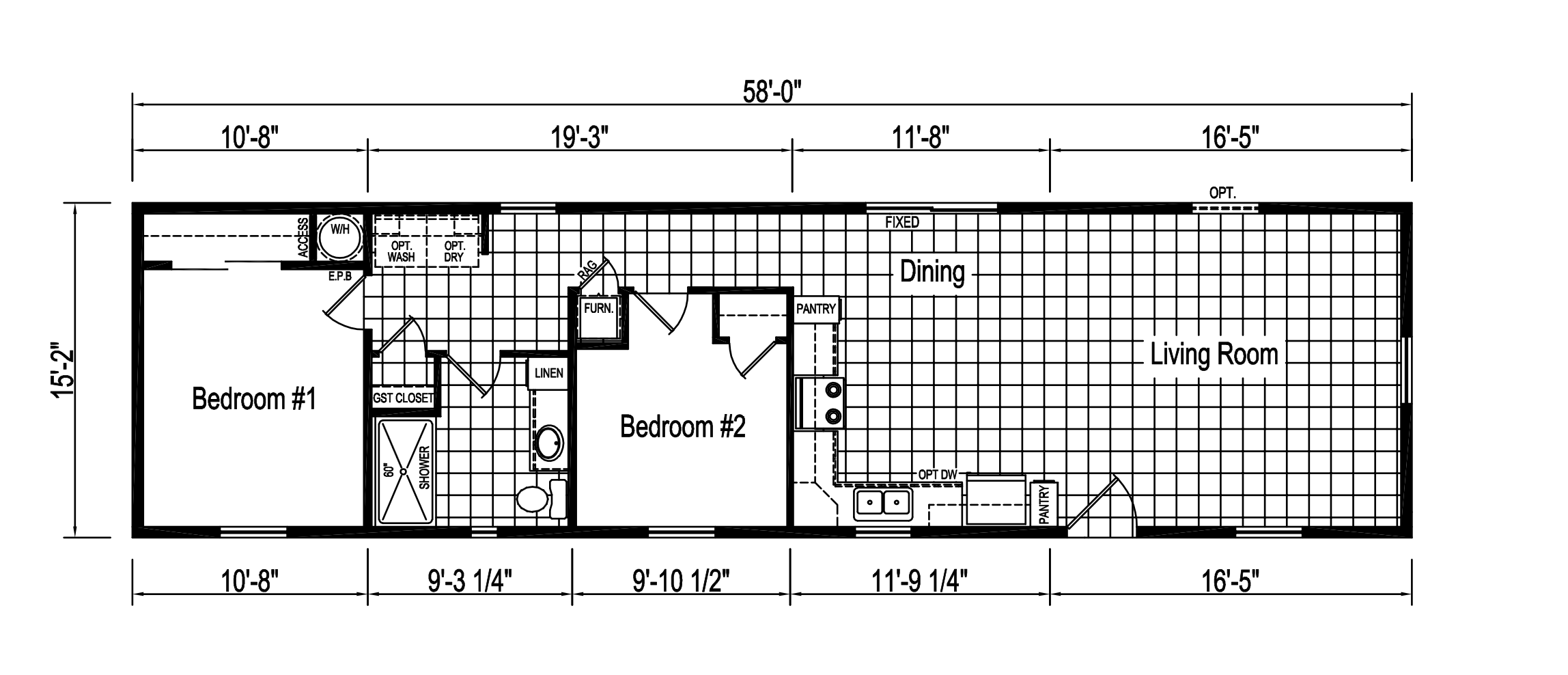
Our first model home delivered to the community for 2026. This two bedroom home sits on a excellent corner lot featuring room for a deck and two car parking. The home also has a landscaped fire pit that was installed by a previous resident.
Saving you on energy is our 2026 goal – delivering energy efficient new construction living. This home features energy star insulation in the walls, windows and doors. With 2″x 6″ wall exterior construction and 2″ x 4″ interior all spaced 16″ on center, this home is built to last.
Open concept living room and dining. See our AI generated photos for some ideas. Oversized bath with a large walk-in shower and storage. Washer / Dryers are available upon request.
Situated low to the ground, this home will allow for minimal steps. Access the rear yard and patio through the large sliding glass door. Patio or decks are available. Schedule your showing today!
Office
The ABC Home Sales office for this community is located at 2846 Main St, Suite 8A, Morgantown PA 19543. We have hours by appointment and open weekdays. Please give us a call to schedule an appointment 610-910-4722.Anita Owens and Karen Lanza are ABC Home Sales agents and available for showings during the week and weekends.
You can schedule a home showing anytime using our online scheduling tool located at the bottom of the home listings. Contact information can be found on the meet the sales team tab of this website.
(610) 910-4722
Featured Benefits
Home Style
- Ranch home
- Shingle roof
- Vinyl siding
- Vinyl foundation enclosure
Home Features
- Energy star
- Tilt in windows
- Cathedral ceilings
- Crown moldings
- 2x6 exterior walls
- Vinyl floors
- Carpeting
- Ceiling fans
- Eat in kitchen
- Pantry
Kitchen Features
- Stainless steel appliances
- White cabinets
- Gas cooking
- Built in microwave
- Double sink
- Dishwasher
- Upgraded appliances
- Recessed lighting
Exterior Features
- 2 car parking
- Exterior lights
- Exterior faucets
- Tree lined street
- Residential gutters and spouts
- Concrete walkway


