



















136 Minch Road, Parksburg PA 19365
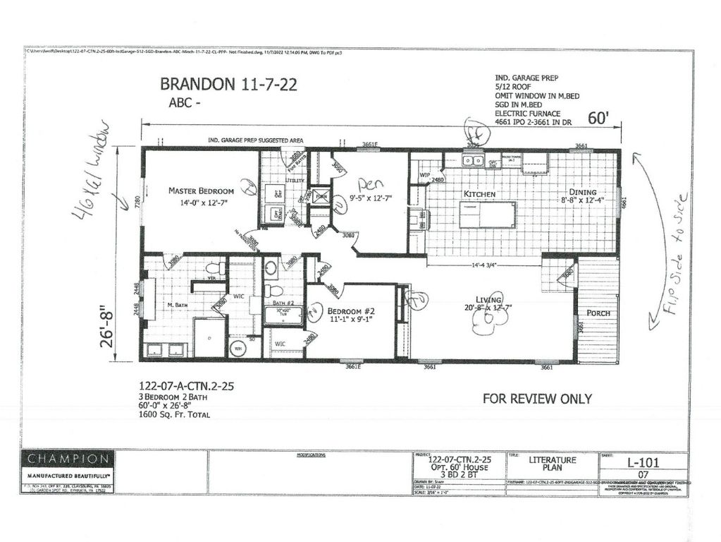
Brand new construction in a new 55+ community. Spacious 3 bed, 2 bath open design with 2 car paved off street parking.
Fireplace with built in shelving alcove. Oversized kitchen island – perfect for entertaining or family gatherings. Laundry / mud room with additional storage.
Gorgeous kitchen features granite countertops, oversized island, tile backsplash, recessed lighting and upgraded appliances. The kitchen flows graciously into the spacious living room and dining area.
Room for a three season room to be added after purchase.
Office
We have an office at 2846 Main St # 8 Morgantown PA. The sales office is open daily during the week. Its best to call ahead or schedule an appointment.Please call to make an appointment:
(610) 910-4722
Featured Benefits
Home Style
- Gable entry home
- Shingle roof
- Vinyl siding
- Insulated foundation enclosure
- Block foundation
- Full covered porch
Home Features
- Energy star
- Tilt in windows
- Crown moldings
- 2x6 exterior walls
- Vinyl floors
- Carpeting
- Ceiling fans
- Coat closet
- Dining room
- Eat in kitchen
- Pantry
Kitchen Features
- Stainless steel appliances
- Electric cooking
- Built in microwave
- Double sink
- Dishwasher
- Tile backsplash
- Upgraded appliances
- Bar top seating
- Island kitchen
- Recessed lighting
Exterior Features
- Patio
- Porch
- 2 car parking
- Exterior lights
- Landscaped lot
- Exterior faucets
- Residential gutters and spouts
- Concrete walkway


