






Enjoy the outdoors from your large deck!
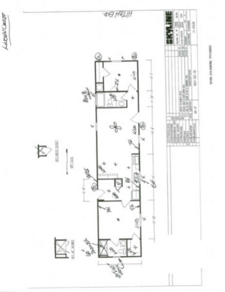
New construction 2 bd /2 bath Skyline home designed perfectly for empty nesters, someone downsizing or a starter home. Neutral decor allows for an easy accommodation to any decorating style. Ceiling fan, crown molding, 8 foot flat ceiling, extra large kitchen window, recessed lights and stainless steel appliances mark the beauty of this home. Utility area for washer/dryer, central air and walk in shower in the primary bath are additional features of the home. Brand new walkways and a large deck compliment the the home and providing a relaxing place to entertain and enjoy the outdoors. Located midway between Philadelphia and Lancaster, enjoy Amish handcrafts, farmers markets or cosmopolitan theater and dining in Center City Philly. An ideal work from home location.
Office
The Management Office is located in our Indian Run Community at: 1 Lenape WayHoney Brook, PA 19344
(610) 910-4722
Featured Benefits
Home Style
- Ranch home
- Shutters
- Shingle roof
- Vinyl siding
- Block foundation
- Vinyl foundation enclosure
Home Features
- Energy star
- Tilt in windows
- Crown moldings
- 2x6 exterior walls
- Vinyl floors
- Ceiling fans
- Eat in kitchen
Kitchen Features
- Stainless steel appliances
- Gas cooking
- Built in microwave
- Double sink
- Dishwasher
- Tile backsplash
- Upgraded appliances
- Recessed lighting
Exterior Features
- Deck
- Exterior lights
- Landscaped lot
- Exterior faucets
- Tree lined street
- Paving stone walk ways
- Residential gutters and spouts


